Contemporary itinerary: Kyoto

search: tipology:
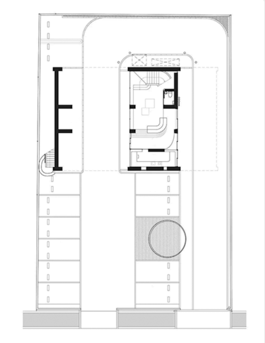
area 203 | Wood Download the map (PDF)