• Progetti
  • Itinerary
  • Concorsi
  • Libri
  • Interviste
  • Eventi & Mostre
  • Corsi
  • Area Interior
  • Arketipo
  • Ambiente cucina
  • Il commercio edile
  • Imprese edili
  • Serramenti design e componenti
  • Hotel Domani
Search
  • Arketipo
  • Ambiente cucina
  • Il commercio edile
  • Imprese edili
  • Serramenti design e componenti
  • Hotel Domani
Area
  • Progetti
  • Itinerary
  • Concorsi
  • Libri
  • Interviste
  • Eventi & Mostre
  • Corsi
  • Area Interior
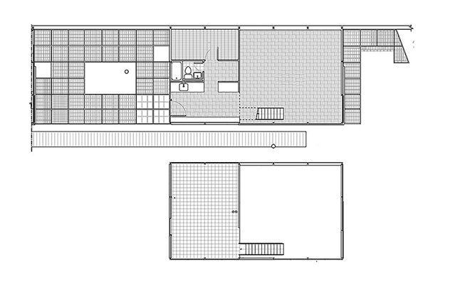
Home Eames House

    Eames House

    By
    Caterina Zanni
    -
    24 Ottobre 2025
    Facebook
    Twitter
    Linkedin
    Pinterest
    WhatsApp
    Email
    Print
      tipology: residential
      architect: Charles and Ray Eames
      realization: 199
      Chautauqua Blvd, Pacific Palisades, Santa Monica, California, Stati Uniti
      contemporary itinerary: Los Angeles
      Facebook
      Twitter
      Linkedin
      Pinterest
      WhatsApp
      Email
      Print
        Caterina Zanni

        Edicola web
        Abbonati e regala
        Iscriviti alla newsletter
        ABOUT US
        Contatti | Abbonati ad Area | Iscriviti alla newsletter
        FOLLOW US
        • Disclaimer e note legali
        • Privacy
        • Informativa estesa sui cookie
        © Tecniche Nuove Spa. Tutti i diritti riservati. Sede legale Via Eritrea 21 - 20157 Milano | Codice fiscale, Partita IVA e Iscrizione al Registro delle imprese di Milano: 753480151
        Registrazione Tribunale di Milano n. 306 del 1981 08 08 | R.O.C. n° 24344 dell'11 marzo 2014

        Iscriviti

        alla

        newsletter

        ×